— COMPREHENSIVE INTERIOR DESIGN —
INTERIOR DESIGN
AN ATMOSPHERIC OFFICE IN THE SHADOW OF A HUNDRED-YEAR-OLD OAK
When we first saw an apartment in a villa from the 1930s in Saska Kępa in Warsaw, we were enchanted by the pre-war shape of the tenement house and the sprawling, old oak growing in the garden. Unfortunately, several times, ineptly renovated interior has lost its original, modernist character. We knew that a considerable aesthetic challenge awaited us, the main assumption of which was to make the foundation’s office at home.
The creation of interiors in historic buildings is always full of surprises. In this case, the object is under full conservation, so it was necessary to obtain opinions and expertise to carry out some works.
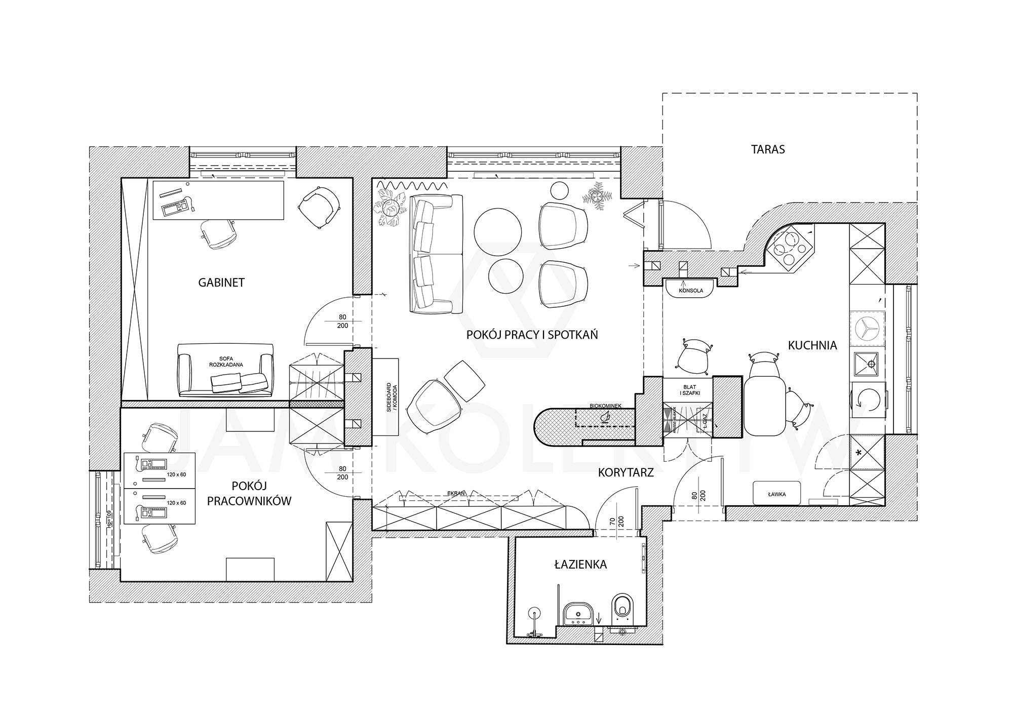
Our task was to arrange the space without carrying out a general renovation, however, after the initial analysis, it turned out that slightly larger renovation works are necessary.
The main change in the living area was the addition of a biofuel fireplace built into the curved wall. Thanks to the extension of the building, we have gained a separate space in the entrance hall.
Behind the fireplace, along the wall, we proposed a series of wardrobes with a projector screen in the background.
The oval forms of buildings and furniture refer to the exterior, modernist shape of the building and add coziness to the interior. To emphasize the home character of the office in the day zone, we have kept the arrangement of furniture and equipment typical of the living room. There is room for sofas, comfortable armchairs, tables, decorative fabrics and art.
We proposed an arched passage covered with a veneer between the living area and the kitchen. This aesthetic procedure allowed for the creation of an additional workstation in the kitchen area.
We left the kitchen in the existing form, changing only the details – the worktop and furniture handles. We have added a small dining table here, thanks to which the space has become more functional. In the recess opposite the place to work, we proposed a simple, glass window.
An important aesthetic procedure was the removal of suspended ceilings and partitions in the day zone built during the previous renovation. Thanks to this decision, we have restored the proper, pre-war interior layout. We also replaced contemporary interior doors with a woodwork designed by us, which with its divisions and the way of glazing refer to the climate of pre-war modernism. The form of the door has become lighter, and the glazing additionally illuminates the rooms.
In the office, which can also serve as a guest room, we designed a library. The walls decorated with jazz posters are a reference to the musical taste of the office owner.
We chose furniture and accessories for an office room intended for two people. We also redesigned the bathroom.
As much as possible, we restored the pre-war character to the details and the form of the internal layout of the space, as well as selected finishing details and equipment creating a comfortable space for both work and business meetings.
AREA:
72 sq.m.
SCOPE OF WORK:
interior desig
INVESTOR:
Center For Leadership
PROJECT DATE:
2019-2020
IMPLEMENTATION:
2020
AUTHORS:
Interior design: Anna Olga Chmielewska, Agnieszka Warnowska
Interior design concept: Anna Olga Chmielewska, Jola Skóra, Agnieszka Warnowska
Moodboards and visualizations: Agnieszka Warnowska

BEFORE
VISUALISATION
MOODBOARDS
by Agnieszka Warnowska
VISUALISATIONS
by Agnieszka Warnowska













